Cover Ciapela.jpg

MALGA CIAPELA

 
 

MALGA CIAPELA

Edificio Polifunzionale a Malga Ciapela, Belluno

Il progetto prevede la realizzazione di un nuovo edificio polifunzionale a Malga Ciapela, nel comune di Rocca Pietore, ai piedi del massiccio della Marmolada. L’intervento si inserisce all’interno di un piano strategico di valorizzazione del comprensorio turistico dolomitico e si configura come una nuova porta d’accesso ai servizi del territorio Unesco.

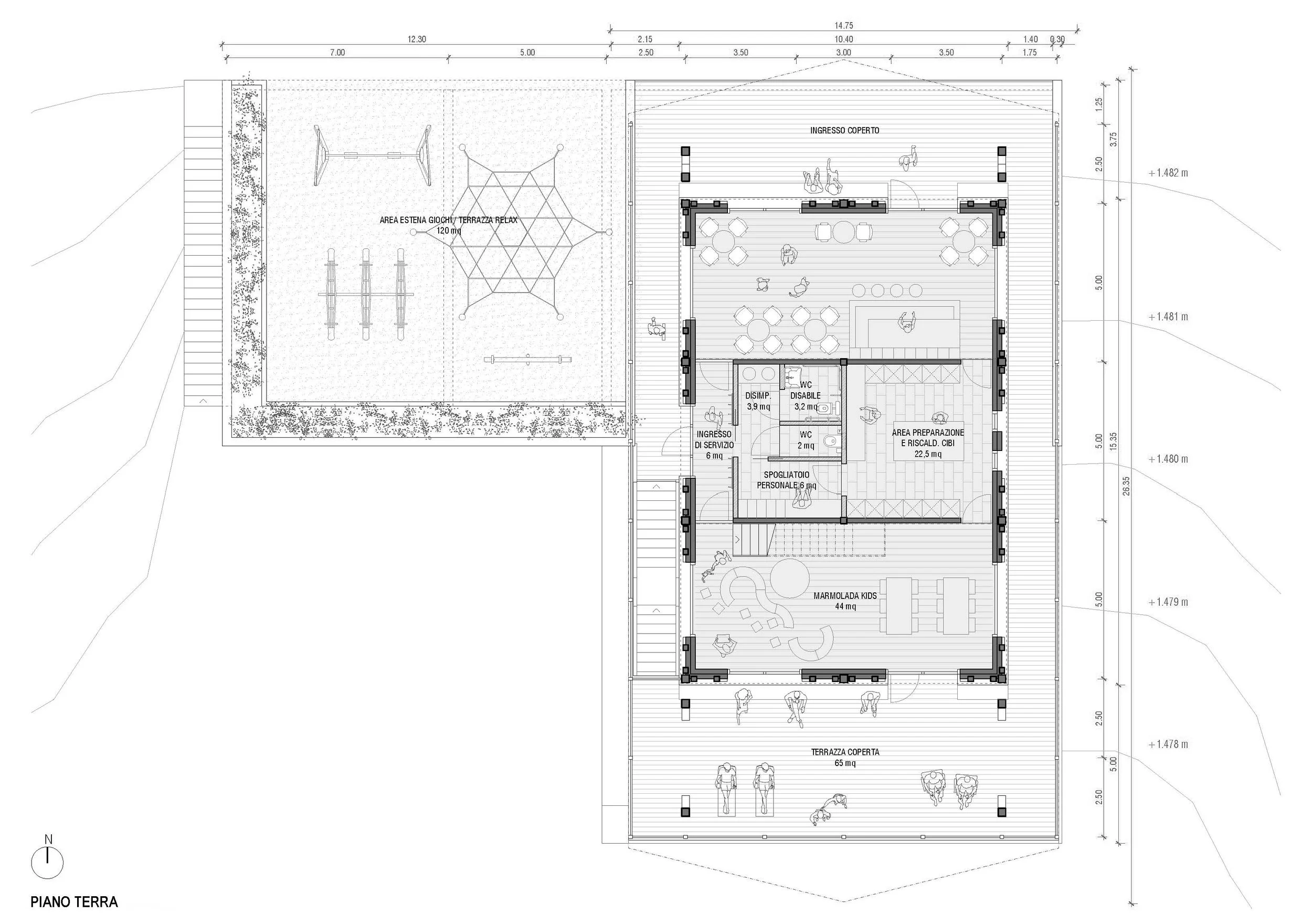
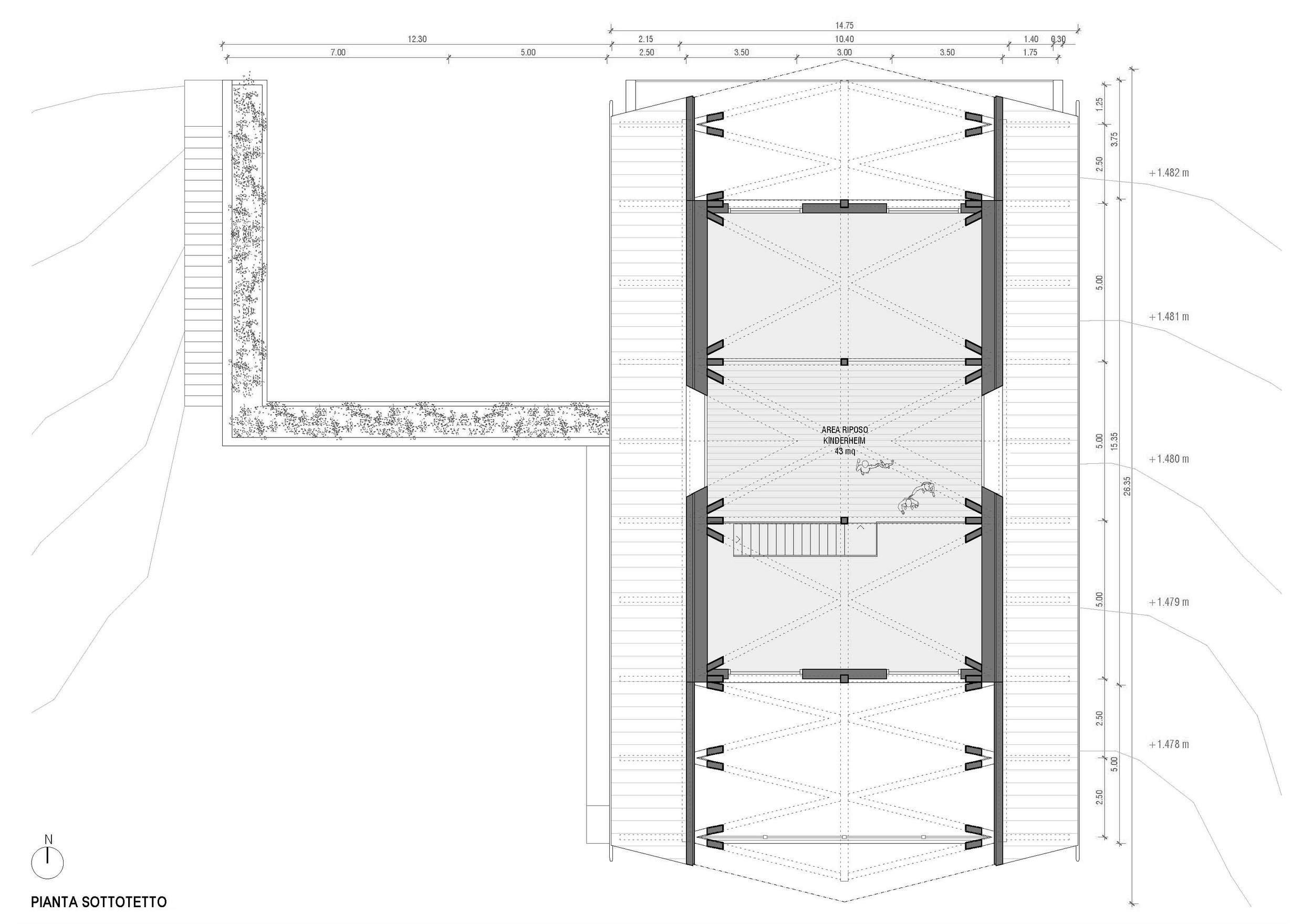
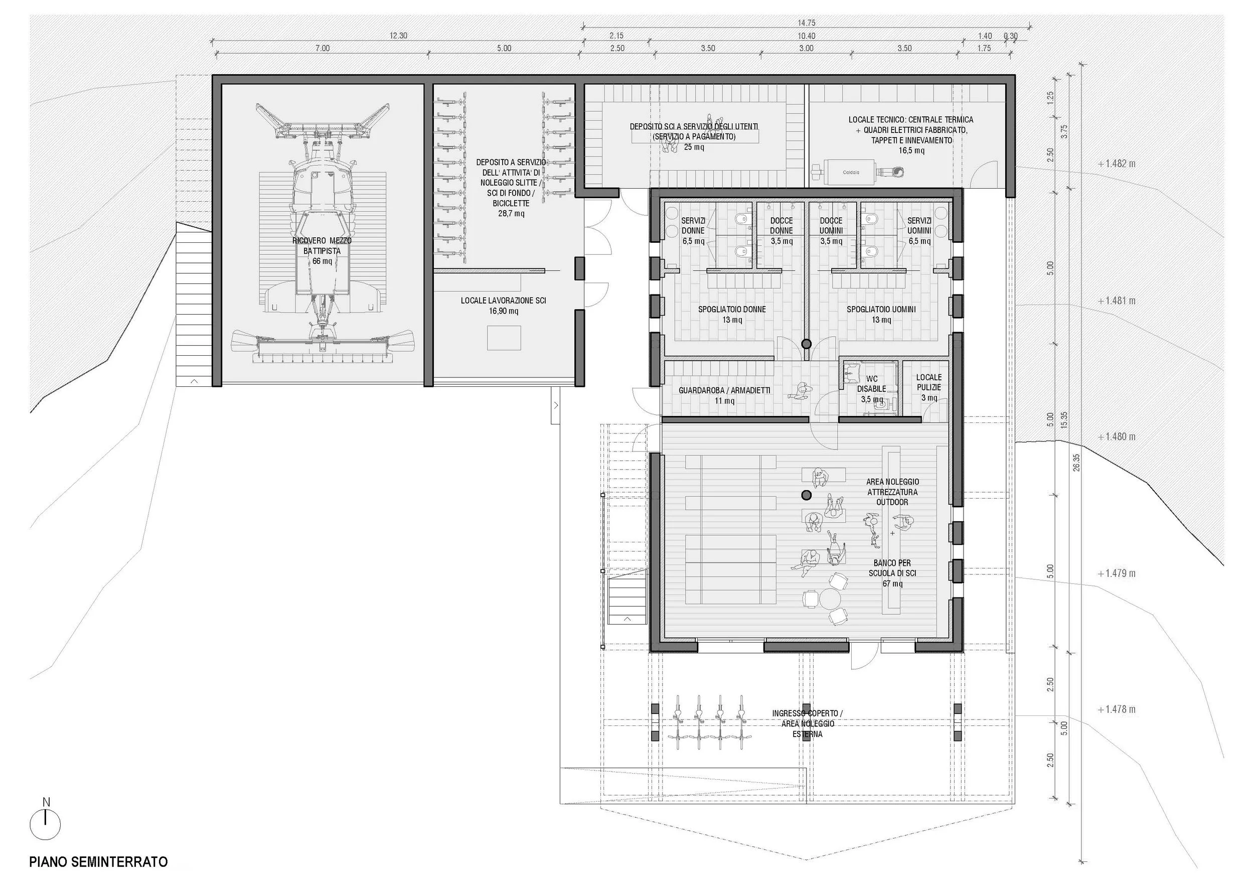
L’edificio si sviluppa su due livelli, seguendo l’andamento naturale del terreno e ispirandosi ai caratteri tipologici delle costruzioni tipiche locali, i Tabià. Il basamento in pietra dolomia dialoga con il paesaggio montano, mentre il piano superiore in legno e la copertura a doppia falda reinterpretano in chiave contemporanea i linguaggi dell’architettura alpina, impiegando materiali naturali combinati a soluzioni tecnologiche moderne. La distribuzione interna riflette una chiara separazione funzionale: il piano superiore ospita l’area “Marmolada Kids”, uno spazio dedicato alle attività ludico-educative per bambini e famiglie, integrato da una terrazza panoramica e da un’esposizione permanente sul patrimonio naturalistico e culturale della Marmolada. Al piano seminterrato trovano posto i servizi per le attività outdoor, tra cui il noleggio di attrezzature, spogliatoi, servizi igienici e un locale per la scuola sci. L’edificio accoglie inoltre un’autorimessa interrata per i mezzi battipista e spazi tecnici a supporto delle attività stagionali.

L’intervento adotta un approccio architettonico integrato, attento all’orografia del sito, all’impatto visivo e alla compatibilità paesaggistica. Grazie a una composizione misurata e all’impiego di materiali durevoli e coerenti con il contesto, l’edificio si inserisce nel paesaggio dolomitico con un linguaggio discreto ma riconoscibile, restituendo un luogo pubblico contemporaneo capace di sostenere la fruizione turistica in tutte le stagioni


Progettisti:
Studio Bressan, Studio Botter

Tipologia:
Edificio polifunzionale

Luogo:
Malga Ciapela, Belluno - Italia

Anno:
2019 - in corso

Stato:
Lavoro in corso

Servizi:
Progetto preliminare e architettonico, Direzione Lavori

 

Superficie Coperta:
280 mq

Volume:
920 mc

Dimensioni:
26 m x 15 m x 10 m