STUDIO BRESSAN - Cover.jpg

FORESTERIA PRIMIERO ENERGIA

 
 

FORESTERIA PRIMIERO ENERGIA

Concorso per demolizione e ricostruzione Ex sede di ACSM a San Martino di Castrozza, Trento - Progetto Vincitore

La proposta progettuale per la riqualificazione della ex sede A.C.S.M. di San Martino di Castrozza nasce dall’obiettivo di coniugare qualità architettonica, sostenibilità ambientale e integrazione paesaggistica. L’intervento prevede la demolizione dell’edificio esistente e la realizzazione di un nuovo volume adibito a foresteria su tre livelli, mantenendo sedime e volumetria originari ma riducendo l’impatto visivo attraverso un linguaggio architettonico essenziale e coerente con il contesto alpino.

Il nuovo edificio si ispira agli archetipi dell’architettura montana, reinterpretati in chiave contemporanea: copertura a doppia falda, struttura portante in legno e rivestimenti in larice garantiscono continuità materica con il tessuto edilizio locale, elevate prestazioni energetiche e durabilità nel tempo. Le ampie superfici vetrate favoriscono il rapporto visivo con il paesaggio e migliorano il comfort interno grazie all’apporto di luce naturale.

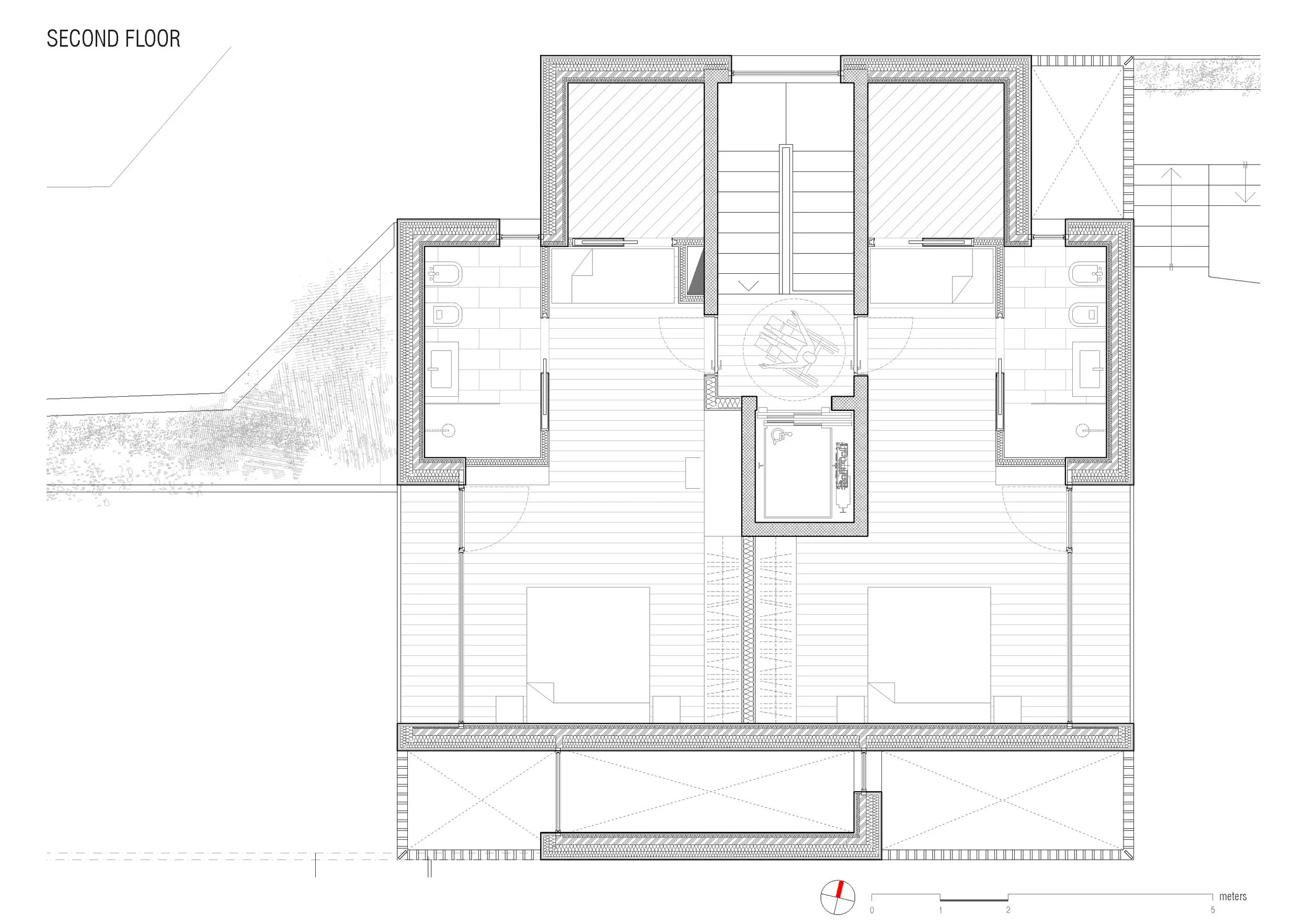
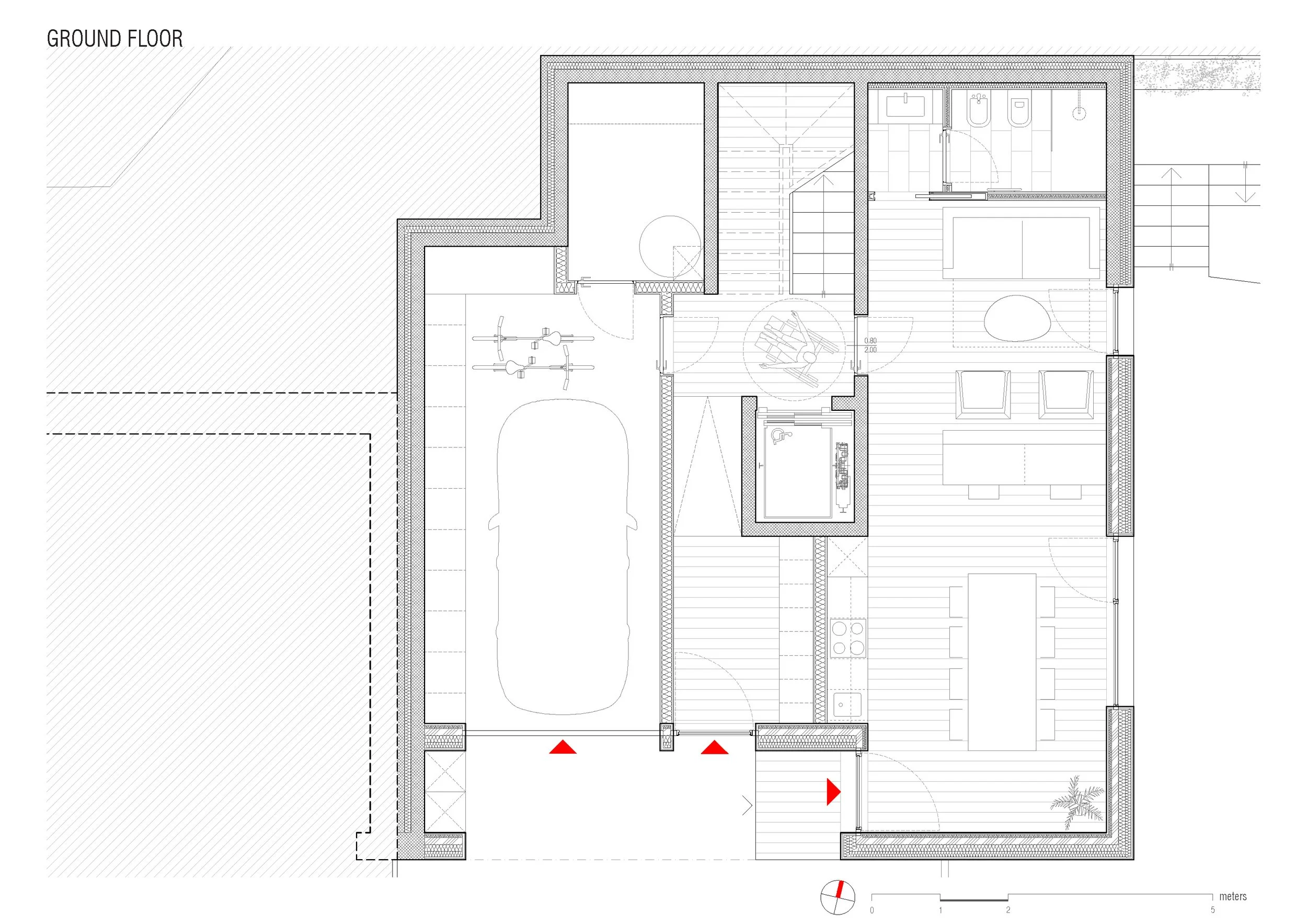
L’organizzazione degli spazi interni è improntata alla massima flessibilità funzionale e si integra con una strategia costruttiva basata sulla prefabbricazione in legno. Un nucleo centrale di distribuzione verticale ottimizza i percorsi e concentra i servizi, consentendo una facile riconfigurazione degli ambienti nel tempo. Camere, spazi comuni e locali di servizio sono progettati per adattarsi a diverse modalità d’uso, garantendo accessibilità, comfort e semplicità gestionale.

Particolare attenzione è riservata alla riqualificazione degli spazi esterni e al verde pensile, concepito come estensione degli ambienti interni e luogo di socialità. La copertura verde, accessibile e attrezzata, rafforza il rapporto tra architettura e paesaggio, migliorando le prestazioni ambientali complessive e la qualità dell’esperienza abitativa.


Progettisti:
Studio Bressan, Studio Botter

Tipologia:
Struttura ricettiva, Foresteria

Luogo:
Trento, Italia

Anno:
2025

Stato:
In corso

Servizi:
Progetto vincitore, Progettazione Definitiva, Esecutiva e Direzione Lavori

Render:
Studio Bressan

 

Superficie Coperta:
112 mq

Volume:
960 mc

Dimensioni:
11 m x 12 m x 10 m