Cover Buzzatti.png

RICONVERSIONE ALBERGO BUZZATTI

 
 

RICONVERSIONE ALBERGO BUZZATTI

Appartamenti in edificio liberty ad Agordo, Belluno

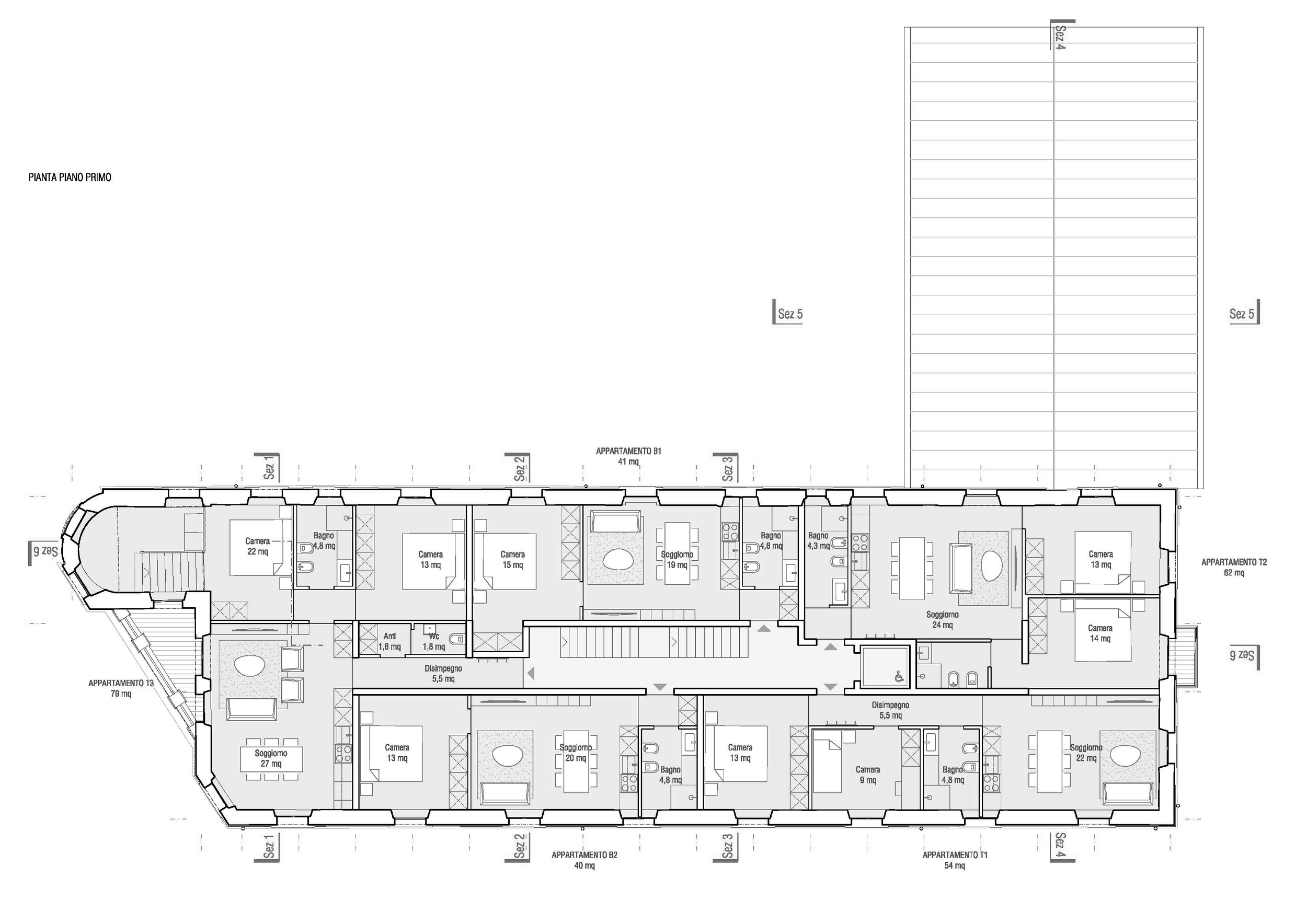
Il progetto riguarda la riqualificazione dell’ex Albergo Buzzatti, un edificio caratteristico situato a ridosso del centro di Agordo, in provincia di Belluno, attraverso un intervento di riconversione funzionale in complesso residenziale. L’intervento prevede la realizzazione di diciotto unità abitative, articolate su cinque livelli e distribuite in due corpi di fabbrica. L’impianto architettonico è stato ripensato mantenendo l’involucro edilizio esistente, eliminando le superfetazioni recenti e ripristinando le forometrie originali sulle facciate principali, con l’obiettivo di restituire all’edificio la sua immagine storica.

L’impianto distributivo interno è stato completamente riorganizzato mediante l’inserimento di un nuovo nucleo strutturale centrale, in grado di ospitare il vano scala, l’ascensore e di garantire un comportamento sismico adeguato. Questa soluzione ha permesso di ottimizzare gli spazi interni, sfruttare appieno le altezze dei piani e ricavare cinque appartamenti per livello, tutti orientati verso il paesaggio dolomitico. Il progetto prevede anche la realizzazione di nuovi solai ad alte prestazioni acustiche, la valorizzazione del piano attico con spazi abitabili e funzionali e il recupero del caratteristico vano scala circolare sul lato ovest convertendolo ad uso abitativo. Il piano seminterrato viene riconfigurato in continuità con il piazzale nord, destinato a parcheggi privati e ingressi secondari, integrando così l’edificio con il tessuto urbano e migliorandone l’accessibilità e la fruibilità complessiva.

Un intervento che coniuga memoria architettonica e innovazione costruttiva, restituendo nuova vita a un edificio simbolo e trasformandolo in un’opportunità abitativa contemporanea nel cuore delle Dolomiti.


Progettisti:
Studio Bressan, Studio Botter

Tipologia:
Edificio residenziale

Luogo:
Agordo, Belluno - Italia

Anno:
2021 - in corso

Stato:
Lavoro in corso

Servizi:
Progetto architettonico

 

Superficie Coperta:
2.200 mq

Volume:
7.150 mc

Dimensioni:
36 m x 25 m x 17 m