STUDIO BRESSAN - Cantina Pace Cover.jpg

CANTINA PACE

 
 

CANTINA PACE

Nuova cantina vitivinicola annessa a fabbricato rurale esistente a Montebelluna, Treviso

L’intervento si inserisce a valle del versante collinare delle Rive a Montebelluna, Treviso. L’area di progetto è caratterizzata da un dolce declivio piantumato a vigneto, i cui filari disegnano il paesaggio attraverso un sistema a fasce parallele che dalla collina posta a nord del sito, scendono a valle fino a raggiungere la strada di accesso alla proprietà.

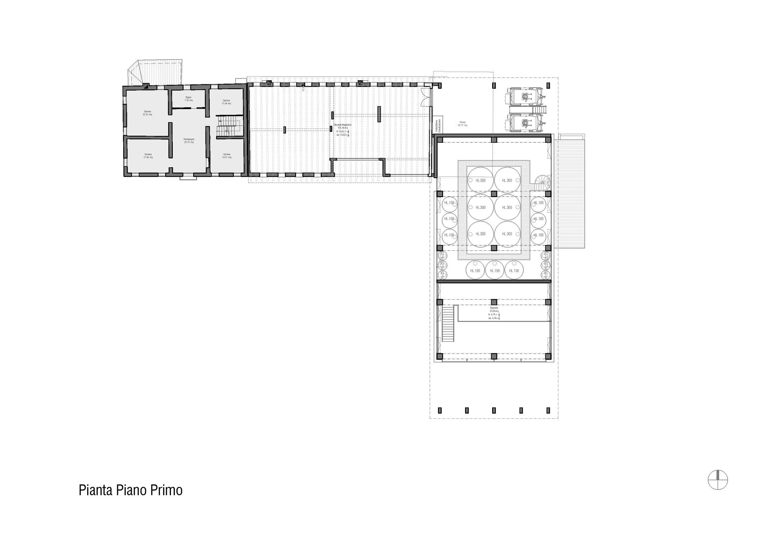
Il progetto prevede la realizzazione di una nuova cantina vitivinicola annessa ad un fabbricato rurale esistente risalente al 1800. Le peculiarità del sito hanno suggerito un approccio progettuale che tenesse conto delle caratteristiche di impianto tipiche delle ville rurali venete. In particolare è stato proposto uno sviluppo in pianta a “L” in cui l’andamento est-ovest della villa principale e dei relativi annessi residenziali e agricoli venisse spezzato ortogonalmente dal nuovo corpo.

Lo studio tipologico dei fienili e degli annessi agricoli tipici della zona ha ispirato lo sviluppo di un volume con tetto a due falde dotato di un ampio portico sul fronte sud adibito a spazio di accoglienza per il pubblico con accesso al punto vendita e un altro portico analogo è stato proposto sul fronte nord in maniera simmetrica. Entrambi i portici, nella parte superiore del prospetto, sono schermati delle gelosie in mattoni, che costituiscono di fatto un frangisole nel fronte sud e un frangivento a nord. 

La struttura, costituita da un sistema di pilastri e di tamponamenti murari prefabbricati, entra a far parte del corredo tipologico e paesaggistico rurale attraverso l’impiego di ossidi di ferro in pasta al calcestruzzo. Ciò ha permesso l’ottenimento di una cromia vinaccia che ben armonizza il nuovo edificio con il contesto esistente.


Progettisti:
Studio Bressan

Tipologia:
Edificio produttivo

Luogo:
Montebelluna, Treviso - Italia

Anno:
2023 - in corso

Stato:
Lavoro in corso

Servizi:
Progetto architettonico, Direzione lavori

 

Superficie Coperta:
520 mq

Volume:
3.290 mc

Dimensioni:
36,5 m x 13 m x 7 m