_Green Village Cover ©Emanuele Bressan.jpg

2011 GREEN VILLAGE - Cittadella, PD

 
 

GREEN VILLAGE

Centro Commerciale a Cittadella, Padova

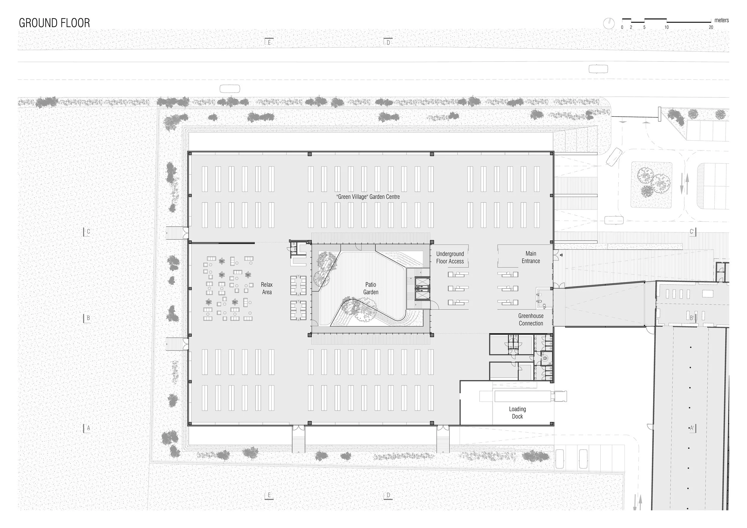
Il Green Village è un garden center collocato nell’area industriale est del comune di Cittadella, in provincia di Padova. Posto baricentricamente rispetto alle principali arterie viarie della zona, attrae un bacino di utenza che si estende fra le province di Vicenza, Padova e Treviso. Il complesso si compone di tre parti: l’edificio commerciale, le serre vivaistiche ed il parco verde.
Il volume commerciale è concepito come un parallelepipedo netto ed essenziale composto da due livelli connessi da una corte verde centrale che si apre verso il cielo. Al livello inferiore si trova il parcheggio seminterrato coperto e su quello superiore si sviluppa un’ampia superficie di vendita con relativa area relax.
Il prospetto rinuncia alla forometria in favore di un solido geometrico cieco la cui unica eccezione è data dagli accessi ed delle uscite di sicurezza, che diventano portali con volume e forma propria grazie ad una sovrastruttura metallica di rivestimento.
Il corretto approvvigionamento di aria e luce è dato dalla combinazione del tetto a shed, che garantisce luce diffusa ed omogenea tutto il giorno, e del patio centrale vetrato a tutta altezza, vero nucleo dell’edificio. 
La costruzione si delinea come un’architettura introspettiva, aperta verso l’interno come una domus romana. Il patio è cuore di tutto l’organismo, nonché luogo attorno cui la pianta si genera: non rappresenta una sottrazione dal volume, ma lo spazio da cui l’edificio si sviluppa in maniera centrifuga. Ai suoi quattro angoli sono presenti gli unici pilastri che, insieme a quelli perimetrali, lasciano il resto della pianta libero per essere fruito come spazio continuo.
I prospetti interni delimitano una stanza a cielo aperto inquadrata da ogni punto dell’edificio. Per la natura dell’attività, questa rappresenta uno showroom che si ripropone all’infinito, in cui è possibile esporre una selezione di prodotti, ricreando al contempo un giardino interno in opposizione al contesto industriale circostante.
Si tratta di un’architettura semplice, economica e di veloce realizzazione che tramite l’utilizzo di elementi prefabbricati ha reso possibile la creazione di superfici commerciali generose e flessibili, anche in risposta alla necessità della committenza di eventuali riarrangiamenti o modifiche del layout di vendita.
Dopo uno studio storico della falda acquifera sottostante, è stato scelto di impostare l’area parcheggio ad una quota di sicurezza al di sotto del piano di campagna, ottenendo così una grande area coperta che beneficia della luce e della ventilazione naturale. Contemporaneamente lo scarto di 1,5 mt che si viene a creare fra la strada e la quota del piano interno alleggerisce l’impatto visivo del grande solido facendolo, seppur solo prospetticamente, fluttuare.


Progettisti:
Studio Bressan con Anna Agostini

Tipologia:
Edificio commerciale

Luogo:
Cittadella, Padova - Italia

Anno:
2011 / 2017

Stato:
Realizzato

Committente:
Pavin S.r.l.

Servizi:
Progetto architettonico, Direzione Lavori

Fotografie:
Emanuele Bressan

 

Superficie Coperta:
4.400 mq

Volume:
44.000 mc

Dimensioni:
80 m x 60 m x 10 m